Project Description

project

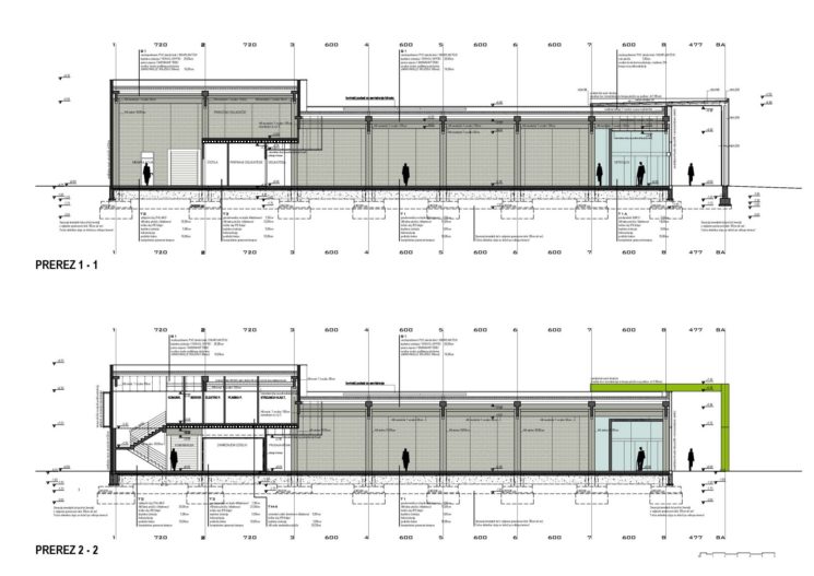
Supermarket Tuš

client

Tuš nepremičnine d.o.o., Celje

location

Vipava

project date / completion date

2009-2012 /

project team

Špela Prezelj u.d.i.a.

 

Project Details